Giải Công nghệ 10 trang 94 Cánh diều
Với Giải Công nghệ 10 trang 94 trong Ôn tập chủ đề 4: Vẽ kĩ thuật ứng dụng Công nghệ lớp 10 Cánh diều hay nhất, ngắn gọn sẽ giúp học sinh dễ dàng trả lời các câu hỏi & làm bài tập Công nghệ 10 trang 94.
Giải Công nghệ 10 trang 94 Cánh diều
Câu hỏi 2 trang 94 Công nghệ 10: Bản vẽ chi tiết có các nội dung gì? Nêu trình tự lập bản vẽ chi tiết.
Lời giải:
* Bản vẽ chi tiết có các nội dung :
- Khung tên:
+ Tên gọi chi tiết
+ Vật liệu chế tạo
+ Tỉ lệ
- Hình biểu diễn:
+ Tên gọi các hình chiếu
+ Vị trí hình cắt
- Kích thước:
+ Kích thước chung
+ Kích thước của từng bộ phận
- Yêu cầu kĩ thuật:
+ Yêu cầu về gia công
+ Yêu cầu xử lí bề mặt.
* Nêu trình tự lập bản vẽ chi tiết:
- Phân tích đặc điểm kết cấu, hình dạng để lựa chọn hình biểu diễn sao cho số lượng hình ít nhất mà vẫn thể hiện được đầy đủ hình dạng, cấu tạo của chi tiết.
- Chọn khổ giấy, tỉ lệ vẽ và vẽ theo các bước:
+ Bước 1: Bố trí các hình biểu diễn
+ Bước 2: Vẽ mờ
+ Bước 3: Tô đậm
+ Bước 4: Hoàn thiện bản vẽ
Câu hỏi 3 trang 94 Công nghệ 10: Bản vẽ lắp có các nội dung gì? Nêu trình tự đọc bản vẽ lắp.
Lời giải:
* Bản vẽ lắp có nội dung:
+ Hình biểu diễn của bộ phận lắp
+ Kích thước
+ Bảng kê
+ Khung tên
* Trình tự đọc bản vẽ lắp:
- Khung tên:
+ Tên gọi sản phẩm
+ Tỉ lệ
- Bảng kê: Tên gọi, số lượng chi tiết, vật liệu
- Hình biểu diễn:
+ Tên gọi các hình chiếu, hình cắt.
- Kích thước:
+ Kích thước chung
+ Kích thước lắp ghép giữa các chi tiết
- Phân tích chi tiết:
+ Hình dáng, vị trí chi tiết 1
+ Hình dáng, vị trí chi tiết 2
- Tổng hợp:
+ Công dụng của sản phẩm
+ Trình tự tháo, lắp sản phẩm
Câu hỏi 4 trang 94 Công nghệ 10: Cho biết sự khác nhau giữa mặt cắt, mặt đứng, mặt bằng của bản vẽ nhà.
Lời giải:
Sự khác nhau giữa mặt cắt, mặt đứng, mặt bằng của bản vẽ nhà:
Mặt cắt |
Mặt đứng |
Mặt bằng |
|
Hình cắt của ngôi nhà khi dùng mặt phẳng cắt song song với mặt phẳng chiếu đứng hay mặt phẳng chiếu cạnh. Đọc được các bộ phận và kích thước của ngôi nhà theo chiều cao cụ thể: chiều cao từng tầng; mái nhà; cửa đi; cửa sổ; cầu thang.. |
Hình chiếu đứng biểu diễn mặt ngoài của ngôi nhà. Cho thấy vẻ đẹp kiến trúc + kết cấu chính của ngôi nhà. Chỉ ghi kích thước chiều cao của mỗi tầng, chiều cao mái, chiều rộng ngôi nhà. |
Hình cắt bằng của các tầng với mặt phẳng cắt nằm ngang cách sàn khoảng 1,5 m. Thể hiện vị trí cửa đi, cửa sổ, tường bao, tường ngăn, vị trí bàn ghế, giường tủ trên từng tầng. Thể hiện kích thước dài, rộng của ngôi nhà, của từng phòng, các kích thước theo chiều rộng của cửa đi, cửa sổ,.. |
Câu hỏi 5 trang 94 Công nghệ 10: Kể tên một số lệnh vẽ và hiệu chỉnh cơ bản trong phần mầm autocad
Lời giải:
Một số lệnh và hiệu chỉnh cơ bản trong phần mềm AutoCAD:
- Lệnh Line - Vẽ đoạn thẳng
- Lệnh Circle - Vẽ đường tròn
- Lệnh Erase - Xóa đối tượng
- Chọn đối tượng
- Lệnh Trim - Cắt đối tượng
- Lệnh offser - Tạo các đối tượng song song
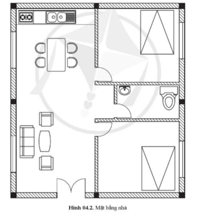
Câu hỏi 6 trang 94 Công nghệ 10: Quan sát hình vẽ mặt phẳng nhà (hinh04.2) và cho biết:
- Bản vẽ mặt bằng nhằm mục đích gì?
- Vị trí các phòng khác, phòng ngủ, khi bếp và nhà vệ sinh so với cửa đi chính.
- Vị trí cửa đi khác, cửa sổ.
- Cửa phòng khách và cửa phòng ngủ khác nhau ở điểm nào?
- Nêu tên các vật dụng được bài trí trong từng phòng.
Lời giải:
- Bản vẽ mặt bằng nhằm mục đích: thể hiện ví trí cửa đi, cửa sổ, tường bao, tường ngăn, vị trí bàn ghế, giường tủ; thể hiện kích thước dài, rộng của ngôi nhà, của từng phòng, các kích thước theo chiều rộng của cửa đi, cửa sổ.,.
- Vị trí các phòng khách, phòng ngủ, khu bếp và nhà vệ sinh so với cửa đi chính:
+ Phòng khách nằm cạnh, ở ngay bên trái so với cửa đi chính, kế đến là khu bếp (đối diện cửa đi chính)
+ Phòng ngủ nằm cạnh, ở ngay bên tay phải so với cửa đi chính, kế đến là phòng vệ sinh, kế đến là phòng ngủ thứ hai.
- Vị trí cửa đi khác, cửa sổ: Mỗi phòng ngủ, phòng vệ sinh đều có 1 cửa đi; có 4 cửa sổ, một cửa sổ ở phòng khách, một cửa sổ ở phòng bếp; hai cửa sổ ở hai phòng ngủ.
- Cửa phòng khách và cửa phòng ngủ khác nhau ở điểm : cửa phòng khách có hai cánh, cửa phòng ngủ có 1 cánh.
- Tên các vật dụng được bài trí trong từng phòng:
+ Phòng khách: bộ bàn ghế sofa; cửa sổ
+ Phòng ngủ: giường, cửa sổ
+ Phòng bếp: bộ bàn ăn, bồn rửa, bếp gas
+ Phòng vệ sinh: bồn rửa mặt, xí bệt
Lời giải bài tập Công nghệ lớp 10 Ôn tập chủ đề 4: Vẽ kĩ thuật ứng dụng Cánh diều hay khác:

